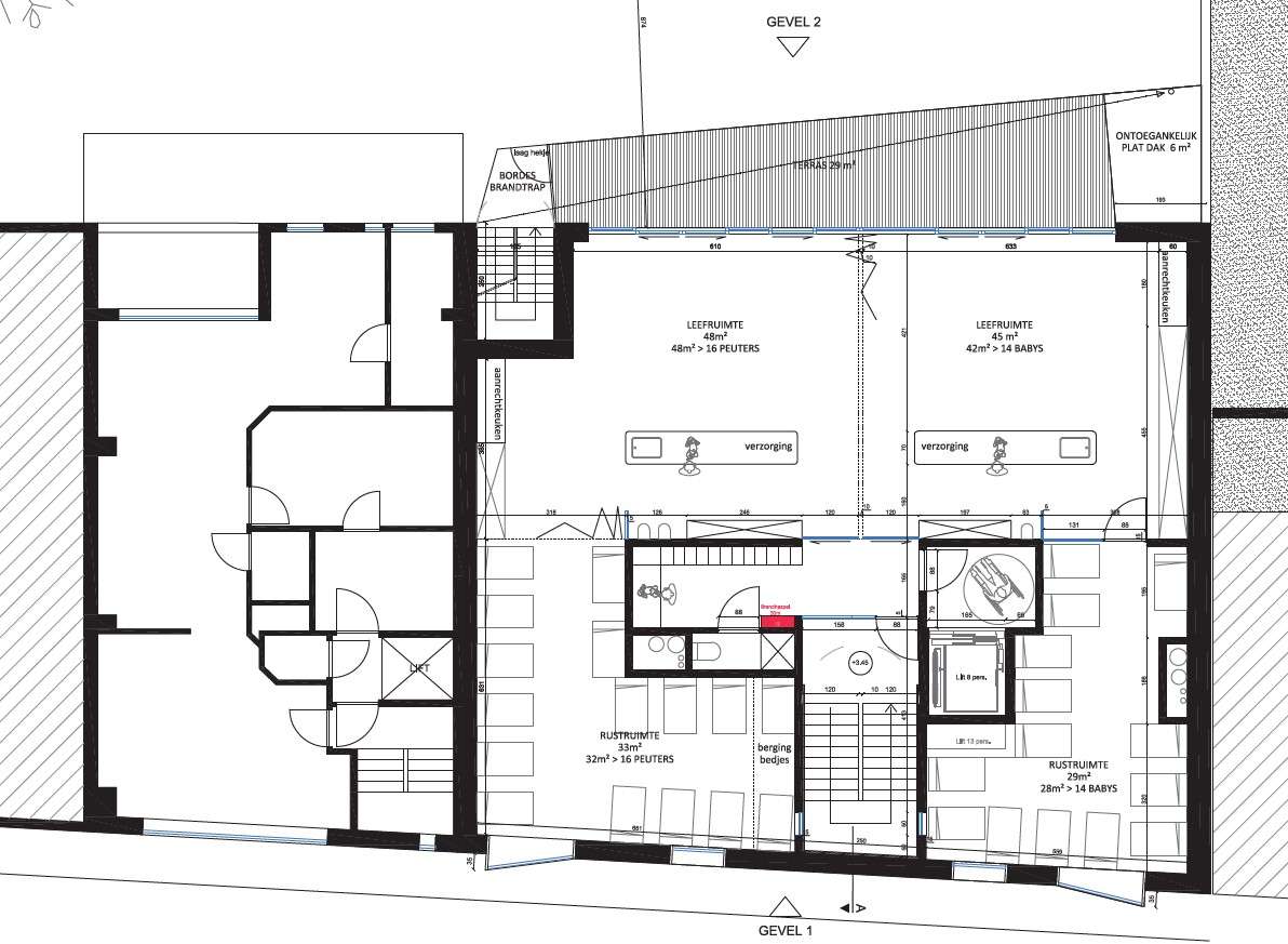
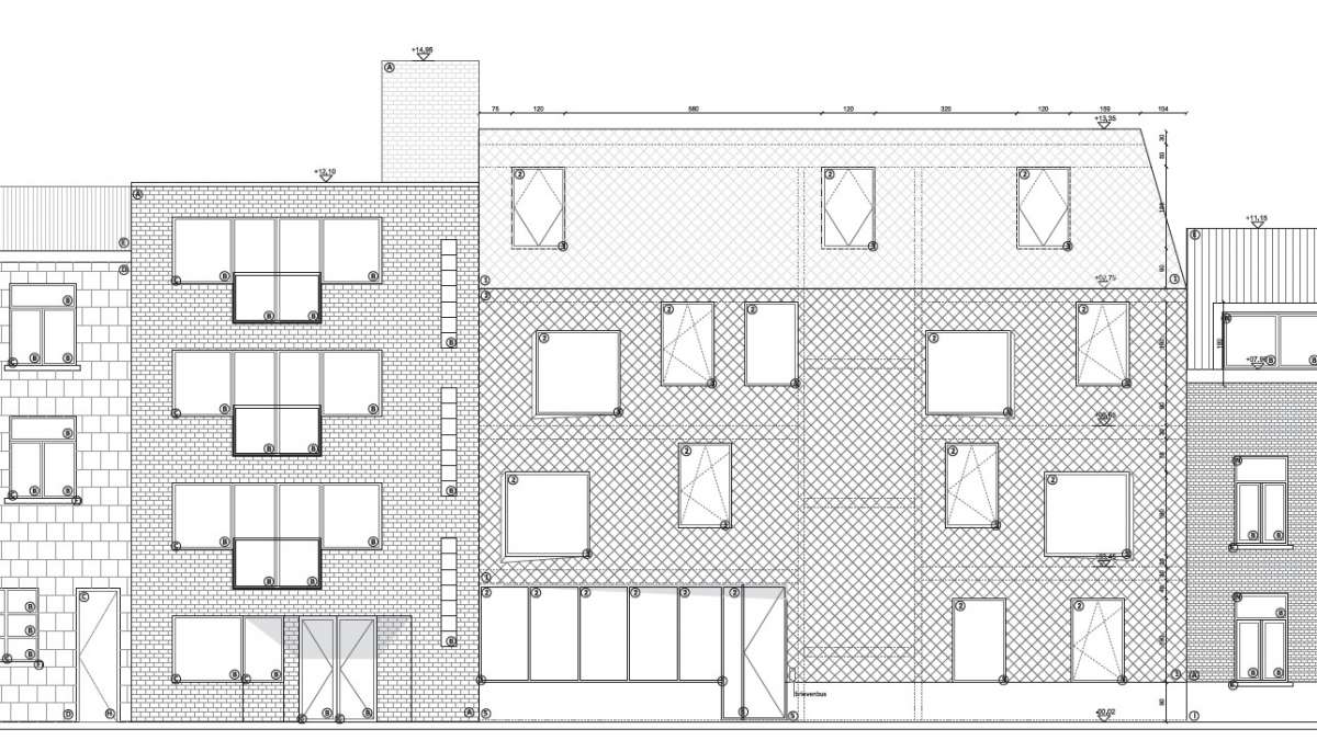
In samenwerking met 1010architects (architectuur), Util (stabiliteit) en Tecon groep (technieken) ging PTA aan de slag voor de uitbreiding van het Molenbeekse kinderdagverblijf Bambino. Door de capaciteit van Bambino uit te breiden op het naastliggend perceel, wordt de locatie van het kinderdagverblijf behouden, een pluspunt. Beide delen zijn met elkaar verbonden via de tuin/speelplaats. De tuin en de verschillende ruime terrassen zorgen voor een royale buitenruimte, een schaars goed in Brussel.
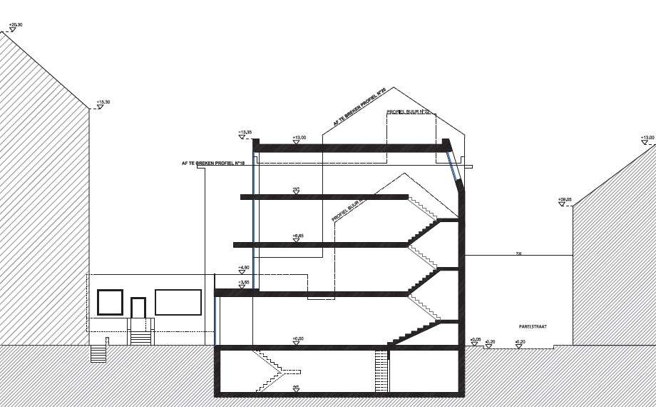
De functionele indeling bouwt verder op het 'Bambino' gevoel. Dat gevoel slaat op de unieke werksfeer van de crèche, waarbij iedereen iedereen kent, van directrice tot kuisvrouw. Deze sfeer willen we behouden en benadrukken door de functies nauwkeurig te verweven. Een verticale organisatie en doorzichten zorgen ervoor dat verschillende gebruikers elkaar tegenkomen en ontmoeten.
Het kinderdagverblijf is volgens de passiefbouwstandaard uitgevoerd.