Het team PTA-JAVA-BRUT deed een ontwerpvoorstel voor de bouw van 2 middelbare scholen (DOA en D2&3) en een gebouw met gemeenschappelijke functies (Hall 0). Deze laatste bevat onder andere: een refter, een sporthal en een bibliotheek en wordt gedeeld met de buurt.
De vormentaal van de bestaande gebouwen op de Ceria-campus wordt verdergezet in de inplanting van de 3 nieuwe gebouwen. Enkele buitenruimtes worden gevormd met voornamenlijk een groene invulling. De bestaande sporthal wordt gered van de voorziene sloop en gestript. De betonnen structuur blijft staan en vormt zo een parvis voor het nieuwe schoolcomplex.
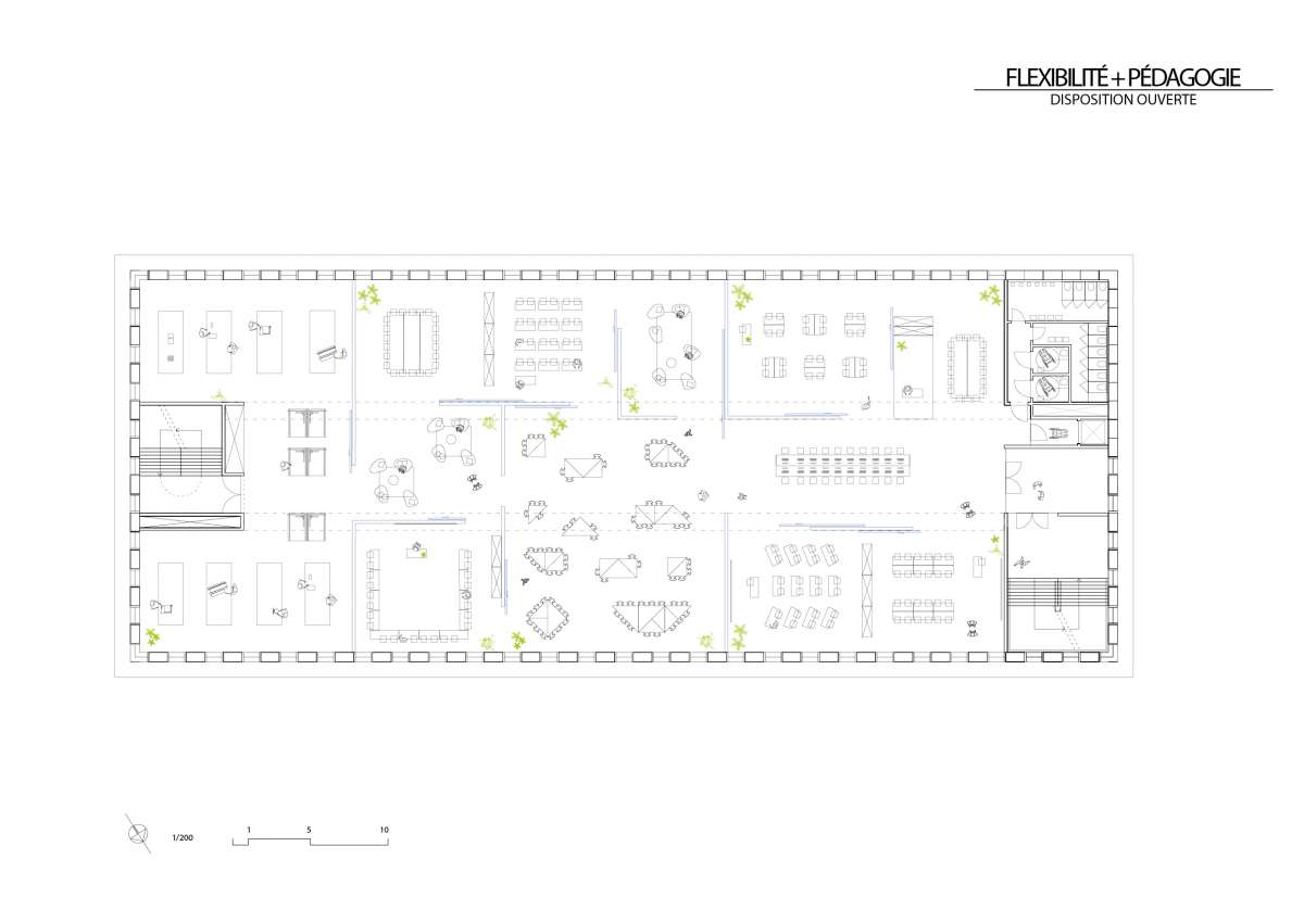
Een uitermate flexibel grondplan vormt het uitgangspunt voor het ontwerp. Een rechthoekig grondplan, onderverdeeld in traveeën, biedt tal van mogelijkheden. Door slim om te gaan met de positionering van technieken en circulatie, ontstaan een ‘plan libre’ met een maximale flexibiliteit. Er ontstaat een maximale vrijheid om in te spelen op de komst van innovatieve onderwijsmethodes.
Human context
. gebruikers
Interaction
. inpassing op de campus
Open-ended
. 'plan libre' speelt in op innovatieve onderwijsmethodes