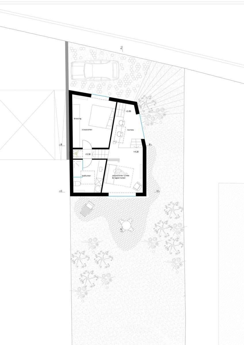
De compacte woning is ontworpen vanuit de snede. De site ligt 2m hoger dan het maaiveld. Gekadreerde raamopeningenen optimaliseren de interactie met de omgeving. Een knik in de zijgevel beperkt inkijk bij de buren. Splitlevels creëren relaties tussen de niveau’s.Er ontstaat een parcour doorheen de woning met een variëteit van grote en kleinere ruimtes .
Human context
Woonkwaliteit als norm
Warme sfeer
Interaction
Variërende relaties tussen binnen en buiten
Speelse snede creëert interactie
Open-ended
Niet elke m² gedefinieerd