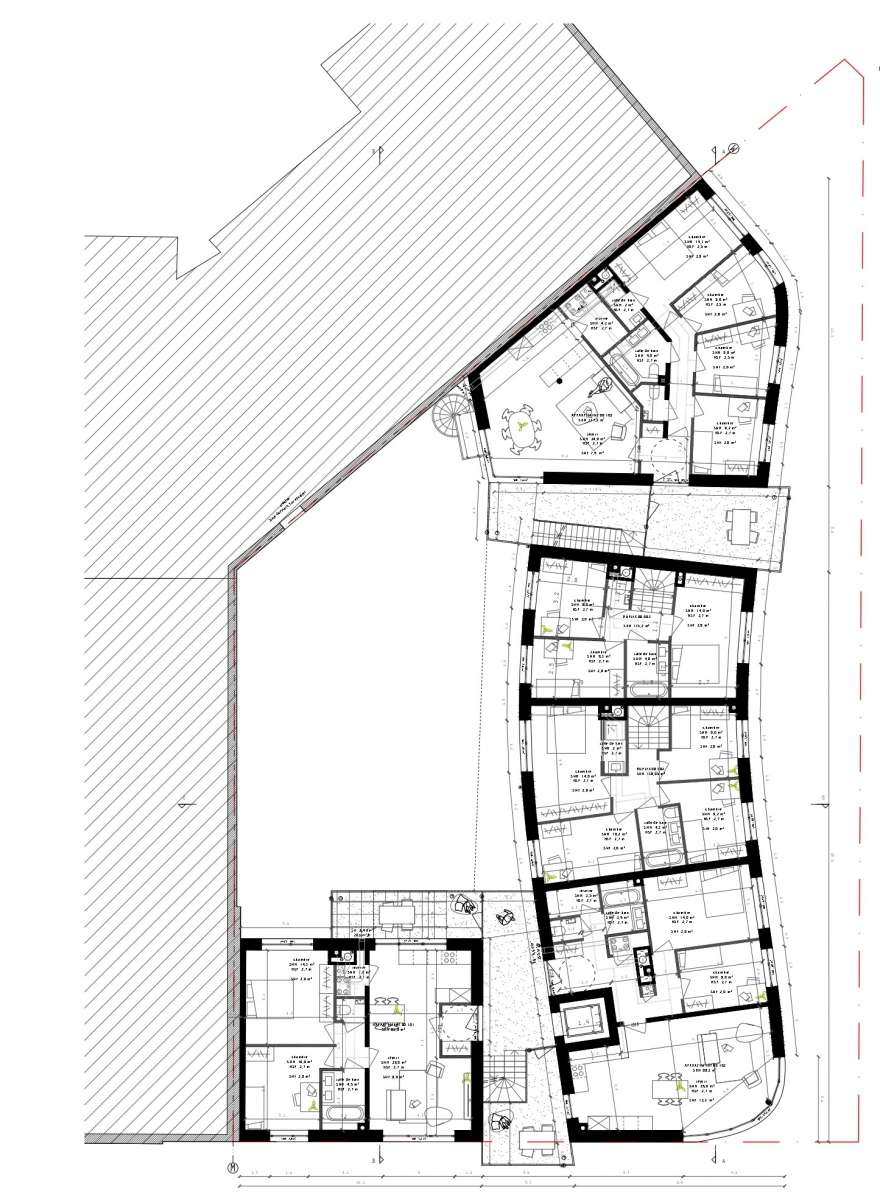
Voor een terrein in de Transvaalstraat 32 in Anderlecht kozen CLTB i.s.m. BMA het team van PTA voor een gebouw met 15 woningen, een collectieve tuin en een voorziening.
PT Architecten stelt voor om het perceel te herconfigureren in drie verschillende gebouwdelen waardoor er openingen ontstaan en er zonlicht kan schijnen in de gemeenschappelijke tuin. Deze worden bovendien ontmoetingsplaatsen voor de bewoners. Door middel van loopbruggen ontstaan er tussen de drie bouwprofielen terrassen in deze openingen.
Wat betreft de inplanting wordt de hoek van het gebouw omgevormd tot een bocht voor een betere toegang tot de weg langs het voetbalterrein. Op die manier is ook de toegang tot het binnenterrein duidelijk en leidt dit naar een openbaar pleintje. Dankzij de beperkte grondinname komt er ruimte vrij voor de gemeenschappelijke tuin.
Het plan voor de appartementen is eenvoudig en duidelijk,met de mogelijkheid voor aanpassingen in de toekomst. Het gaat telkens om doorzonappartementen die beschikken over een buitenruimte. Op het dak wordt een gemeenschappelijke ruimte gecreëerd, toegankelijk via de loopbruggen tussen de verschillende gebouwdelen.
Tot slot wordt de materialiteit van de gevel ingezet voor de toeëigening van de woningen. Door stenen in verschillende richtingen te plaatsen ontstaat een dambordpatroon dat de verschillende woningen onderscheidt.
Zie ook de reportage die ARCHI URBAIN maakte: https://www.archiurbain.be/?p=8496 (foto's © Tim Van de Velde)
Pour son site situé rue du Transvaal 32 à Anderlecht, le CLTB a choisi l'équipe de PTA pour la construction d’un immeuble de 15 logements, d’un jardin collectif et d’un équipement associatif.
PTA propose de reconfigurer la parcelle en trois gabarits distincts, créant ainsi des failles qui permettent de faire entrer la lumière dans le jardin commun et de créer des espaces de rencontres entre les habitants. De plus, de terrasses sont créées dans ces failles via la création de passerelles entre les trois gabarits.
Au niveau de l’implantation, l’angle du bâtiment est transformé en une courbe permettant d’accéder de manière aisée au chemin longeant le terrain de foot. L’accès à l’intérieur d’ilôt est ainsi clair et mène vers une placette à destination du public. L’emprise au sol permet également un dégagement pour le jardin collectif.
Le plan des appartements est simple et clair avec possibilités d’adaptation dans le futur. Tous les appartements sont traversants et sont doté d’un espace extérieur. Un espace commun est également créé en toiture, accessible via les passerelles entre les différents gabarits. Enfin, la matérialité de la façade s’exprime intelligemment et ce par un jeu de briques placés dans différents sens, créant ainsi un jeu de damier permettant une différenciation des différents logements.
Réportage de ARCHI URBAIN sur le projet : https://www.archiurbain.be/?p=8496
Human context
. herkenbaarheid individuele woning
. variabele woonwensen als uitgangspunt
. participatief traject met archilabs
Interaction
. circulatie = ontmoetingsplek
. tuin + dakterras
Open-ended
. casco woningen laten eigen invulling toe
. levenslang wonen
. felxibel gebruik voorzieningen