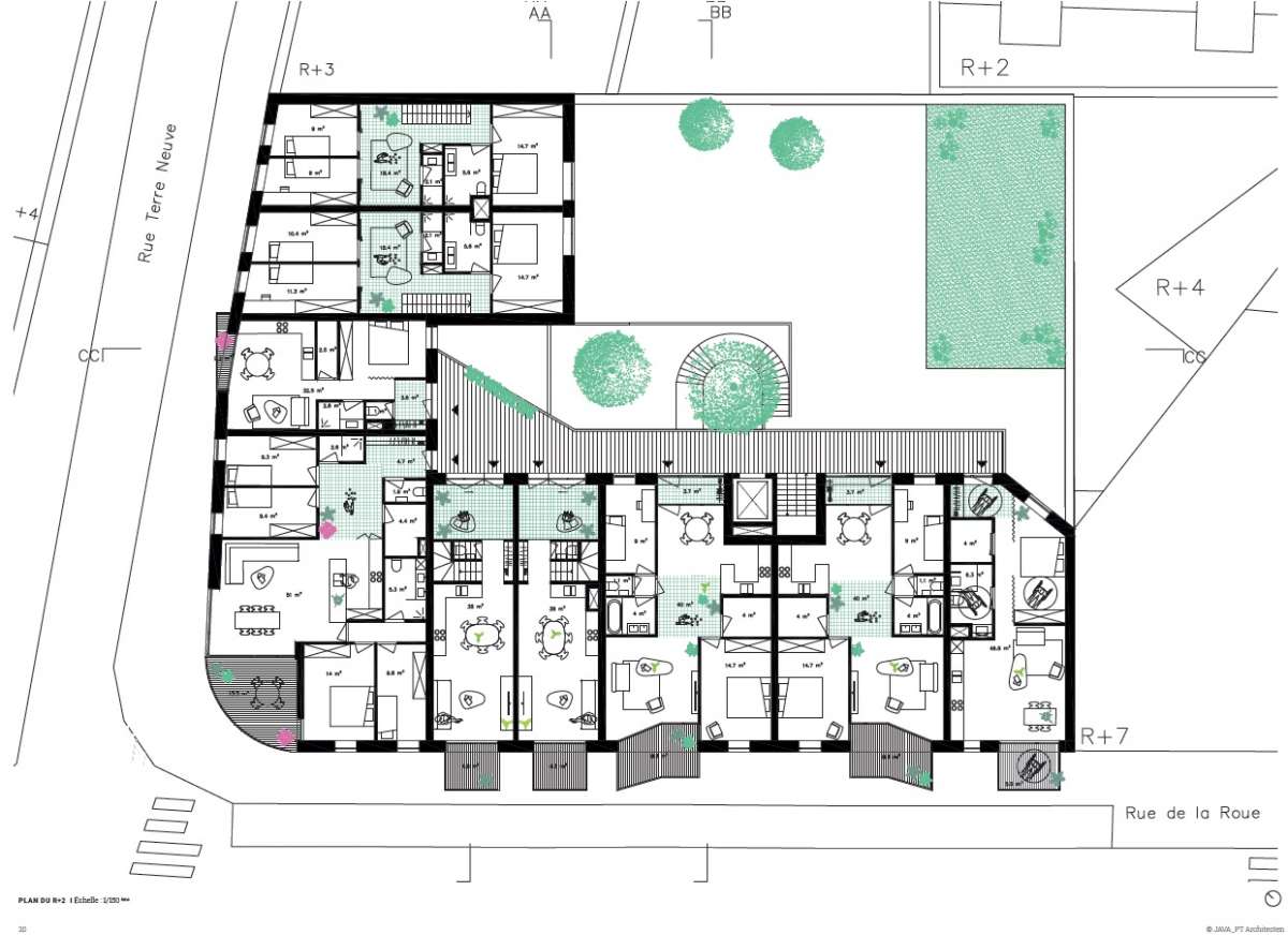
Wedstrijdvoorstel voor het ontwerp van een gemengd woongebouw in centrum Brussel. Het gebouw bevat 40 wooneenheden, een commerciële ruimte en een parkeergarage.
i.s.m. JAVA Architecten/s
Human context
. Wintertuin geeft gradatie in privacy en mogelijkheid tot toe-eigening
. Duurzaamheid als belangrijke parameter
Interaction
. Interessante mix in type appartementen
. Connectie met buitenruimte
Open-ended
. Diagonaal plan biedt mogelijkheden tot flexibel ruimtegebruik