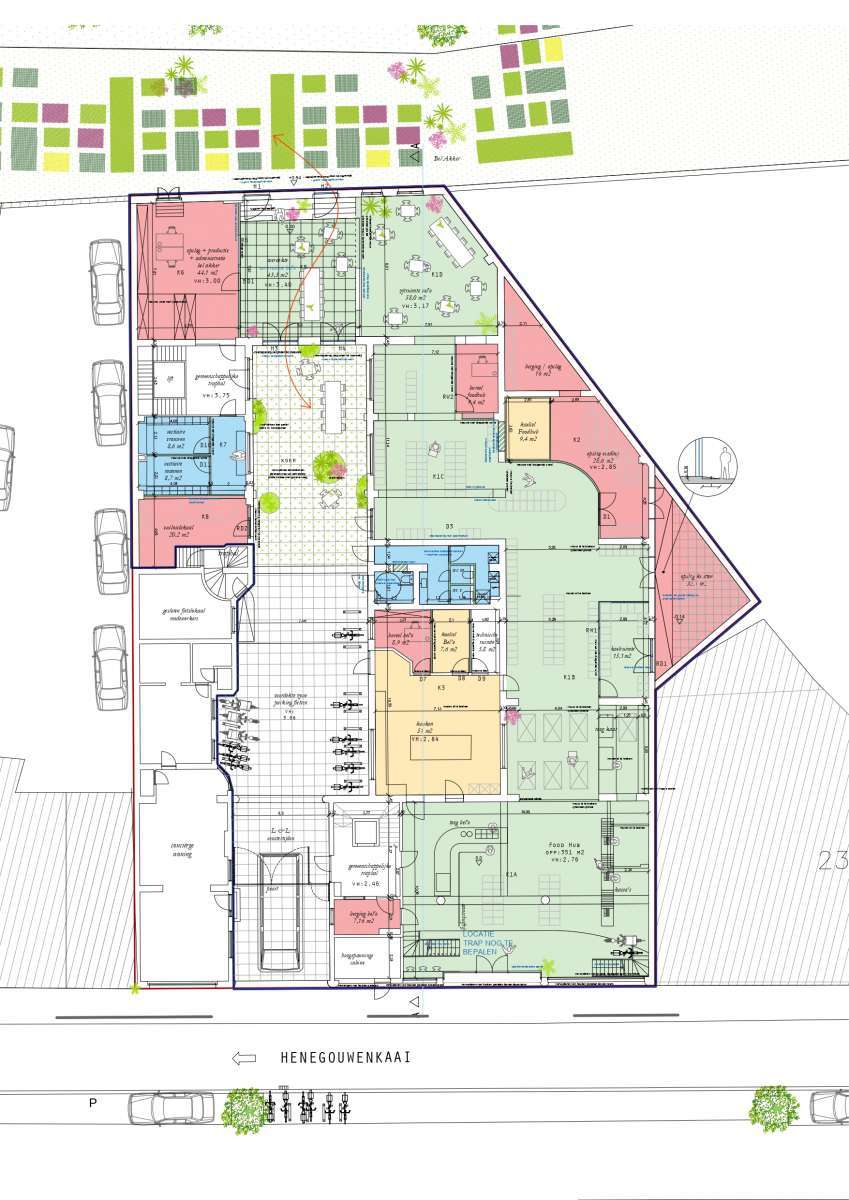
Het project omvat de verbouwing van een schrijnwerkerij tot een biowinkel 'Food Hub' in Sint-Jans Molenbeek. Belangrijk uitgangspunt in het ontwerp is de opwaardering van de binnenkoer als semi-publieke ruimte met doorsteek richting het stadslandbouwproject Bel'akker. De binnenkoer wordt ingezet als verblijfruimte voor de klanten van de winkel & de horeca, alsook voor de werknemers van de verschillende sociale diensten op de verdiepingen.
Human context
. Een gedeelde actieve binnenkoer, voor werknemers én klanten.
Interaction
. Tussen voedselconsumptie & voedselproductie
Open-ended
. Gezien het pand niet in eigendom is van de huurder, wordt er ingezet op aanpasbaarheid en flexibiliteit (open grondplan, lichte wanden, ...)